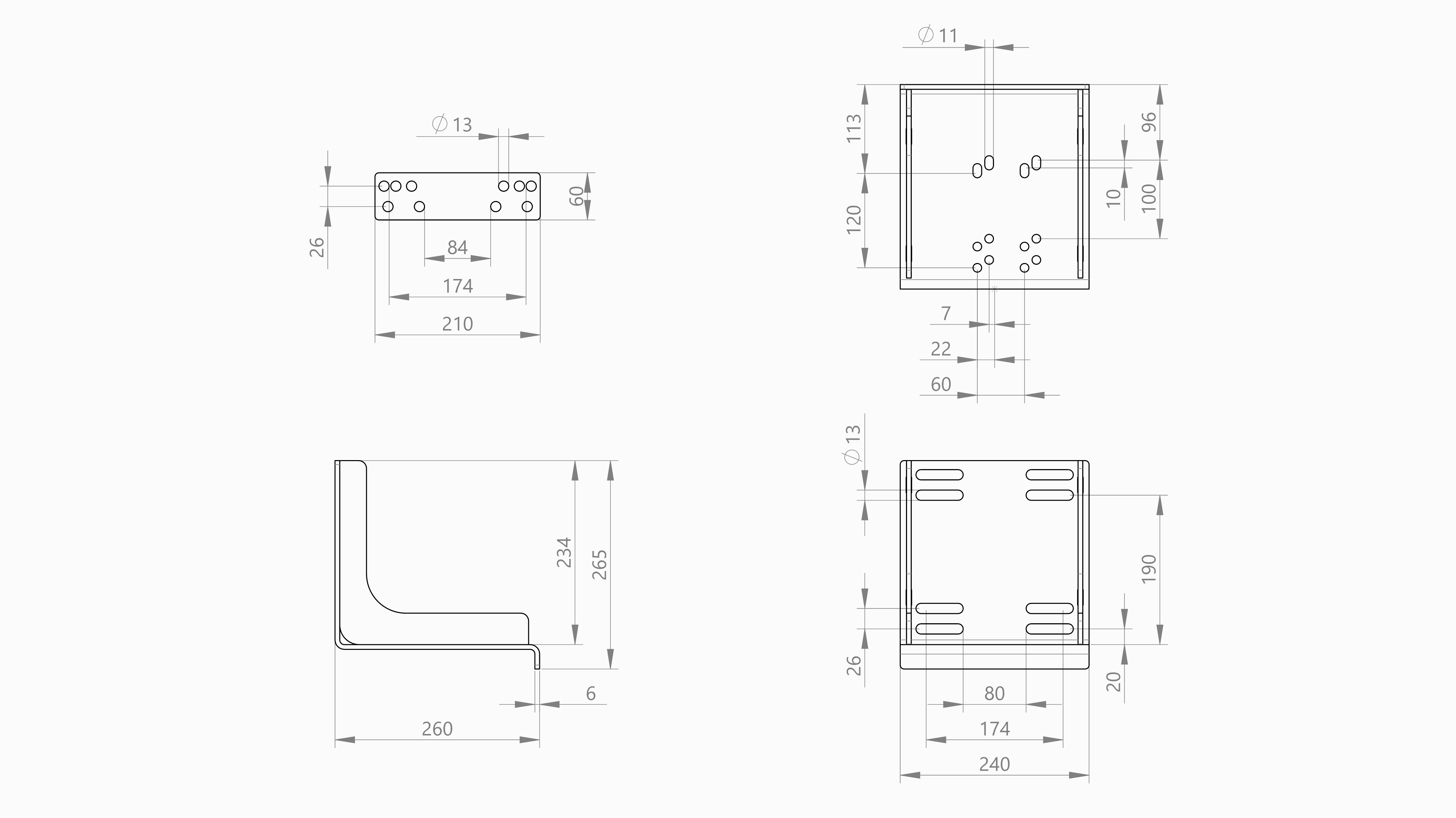
De montagestoel dient ter bevestiging van een GW30 t/m GW80 schermmotorreductor aan de kolom. Middels de meegeleverde contraplaten en separaat te bestellen montageset, is de stoel aan de kolom te bevestigen. Hierbij moeten de juiste kolomafmetingen worden doorgegeven.
| Artikel | Omschrijving | m [kg] |
| P.MP.GWS.01 | Montagestoel GW30/80 incl. CP | 7,9 |
Westlandseweg 9
2291 PG Wateringen
Nederland
+31 174 29 20 89
sales@degierdrivesystems.com
Wij komen graag in contact met u! Na het invullen van dit formulier kunt u alle documenten op onze website downloaden. De download start direct na het invullen van het formulier.